verkocht onder voorbehoud
Straelseweg 102
Straelseweg 102
Straelseweg 102
Straelseweg 102
Straelseweg 102
Straelseweg 102
Straelseweg 102
Straelseweg 102
Straelseweg 102
Straelseweg 102
Straelseweg 102
Straelseweg 102
Straelseweg 102
Straelseweg 102
Straelseweg 102
Straelseweg 102
Straelseweg 102
Straelseweg 102
Straelseweg 102
Straelseweg 102
Straelseweg 102
Straelseweg 102
Straelseweg 102
Straelseweg 102
Straelseweg 102
Straelseweg 102
Straelseweg 102
Straelseweg 102
Straelseweg 102
29

Straelseweg 102

5914 AR VENLO

tussenwoning

€ 275.000,- k.k.

Interesse?

Neem contact met ons op!

info@poelsmakelaars.nl
077 - 310 10 39

Bezichtiging aanvragen

Delen via social media

Omschrijving

Ruime tussenwoning met o.a. 3 slaapkamers, ruime woonkamer, leefkeuken en badkamer en separaat toilet op de begane grond. Tevens is er een grote bijkeuken aangrenzend aan de keuken en met toegang tot de stadstuin. De geheel beklinkerde stadstuin is ommuurd en voorzien van een ruime koelcel. Gelegen op 2 minuten fietsafstand van centrum Venlo. Momenteel is er een hellingbaan aanwezig welke in januari a.s. verwijderd zal worden. De woning is gelegen in de buurt van scholen, supermarkten winkels en speelvoorzieningen. In nog geen 5 autominuten bereikt men de uitvalswegen A67 en A73

Indeling:

Kelder:
De kelder is ca. 18,5m² groot.

Begane grond:
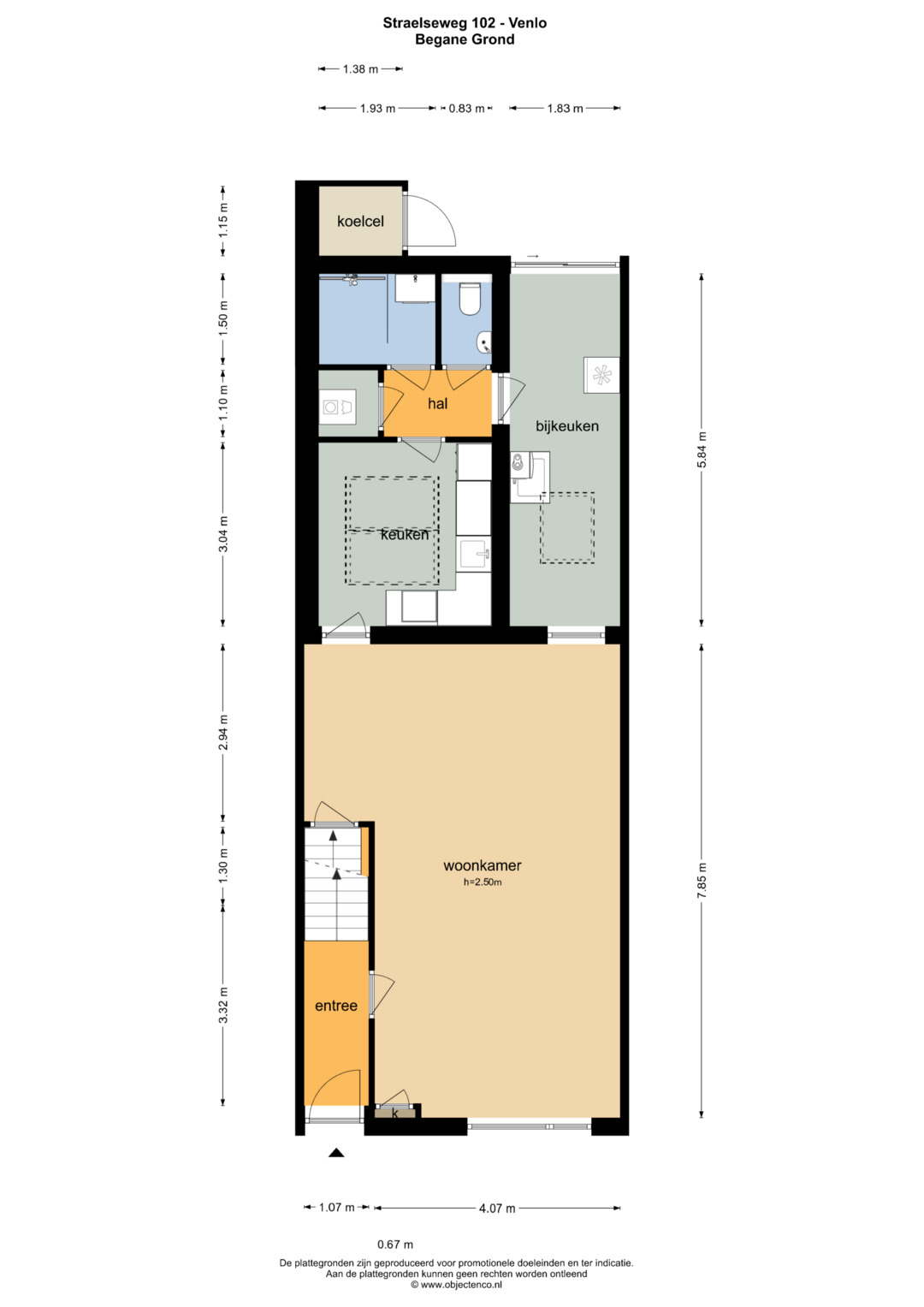
Vanuit het trottoir is de overdekte entree te betreden. De ruime ontvangsthal geeft toegang tot de woonkamer en trapopgang naar de 1e verdieping. De ruime woonkamer is voorzien van een houten plankenvloer en beschikt over inbouwspots. Vanuit de keuken is er toegang tot de loopdeur welke toegang geeft tot de trapgang naar de kelder en een loopdeur naar de keuken. De keuken is ruim van opzet en beschikt over een inductiekookplaat, afzuigkap, koelkast, vaatwasmachine, combioven/ magnetron en zeer veel opbergruimte. Door de grote lichtkoepel is er veel daglichttoetreding. Verder geeft de keuken toegang tot de hal. Vanuit de hal is het mogelijk de wasruimte separate toiletruimte, badkamer en bijkeuken te betreden. De badkamer en toiletruimte zijn geheel betegeld. De separate toiletruimte beschikt over een zwevend toilet en fonteintje. De badkamer is voorzien van een inloopdouche en wastafel met meubel. Middels een loopdeur is er toegang tot de bijkeuken. De bijkeuken is ruim van opzet en geeft toegang tot de tuin.

1e verdieping:
De zeer ruime overloop geeft toegang tot de 3 slaapkamers. De slaapkamers zijn ca. 7,5m², 10m² en 15.5m² en allen voorzien van een laminaatvloer.

Zolder:
Middels een vlizotrap is de zolder te bereiken. Deze is momenteel in gebruik als bergzolder.

Tuin:
De woning beschikt over een stadstuin. De tuin is geheel betegeld en omheind. Vanuit de tuin is de eigen koelcel te bereiken.

Algemeen:
Bouwjaar 1906, woonoppervlakte ca. 114m², inhoud ca. 517m³, perceeloppervlakte 100m². De Cv-opstelling is van het merk Vaillant en bouwjaar 2000. De woning is gelegen nabij het centrum van Venlo in de buurt van scholen, winkels en speelvoorzieningen. In nog geen 5 autominuten bereikt men de uitvalswegen A67 en A73.

Vraagprijs € 275.000,- k.k.
Lees meer

Kenmerken

Overdracht

Vraagprijs
€ 275.000,- k.k.
Status
verkocht onder voorbehoud
Aanvaarding
in overleg

Bouw

Soort woning
woonhuis
Soort woonhuis
eengezinswoning
Type woonhuis
tussenwoning
Aantal woonlagen
4
Bouwvorm
bestaande bouw
Bouwjaar
1906
Huidige bestemming
woonruimte
Onderhoud binnen
goed
Onderhoud buiten
goed
Isolatie
dakisolatie, vloerisolatie, dubbel glas

Energie

Energielabel
E
Verwarming
cv ketel
C.V.-ketel
gas gestookte combi-ketel uit 2000 van Vaillant, eigendom

Oppervlakten en inhoud

Woonoppervlakte
114 m²
Perceeloppervlakte
100 m²
Inhoud
517 m³
Inpandige ruimte oppervlakte
37 m²

Indeling

Aantal kamers
4
Aantal slaapkamers
3

Garage / Schuur / Berging

Garage
geen garage
Parkeergelegenheid
betaald parkeren, parkeervergunningen

Plattegronden

Locatie

Downloads


Vergelijkbare woningen

Bezichtiging of meer informatie?

Vul je gegevens in en wij nemen zo spoedig mogelijk contact met je op.

×